26 январь 2016 Лада.Онлайн 93 136 2



Штатное место размещения генератора Lada 4×4 внизу, что назвать удачным решением нельзя. Во время прохождения внедорожья, на него без труда попадает вода и грязь, либо капает тосол, что существенно сокращает срок службы. Чтобы защитить важную деталь от влаги владельцы прибегают к доработке. Рассмотрим, как перенести генератор на Lada 4×4 вверх.
Истории наших читателей
«Гребаный таз. «
Всем привет! Меня зовут Михаил, сейчас расскажу историю о том, как мне удалось обменять двенашку на камри 2010г. Все началось с того, что меня стали дико раздражать поломки двенашки, вроде ничего серьезного не ломалось, но по мелочи, блин, столько всего, что реально начинало бесить. Тут и зародилась идея о том, что пора менять машину на иномарку. Выбор пал на таёту камри десятых годов.
Да, морально то я созрел, а вот финансово никак не мог потянуть. Сразу скажу, что я против кредитов и брать машину, тем более не новую, в кредит это неразумно. Зарплата у меня 24к в месяц, так что насобирать 600-700 тысяч для меня практически нереально. Начал искать различные способы заработка в интернете. Вы не представляете сколько там развода, чего только не пробовал: и ставки на спорт, и сетевой маркетинг, и даже казино вулкан, в котором удачно проиграл около 10 тысяч(( Единственным направлением, в котором мне, казалось, можно заработать — это торговля валютой на бирже, это называют форексом. Но когда начал вникать, понял что это оочень сложно для меня. Продолжил копать дальше и наткнулся на бинарные опционы. Суть та же, что на форексе, но разобраться намного проще. Начал читать форумы, изучать трейдерские стратегии. Попробовал на демо счете, потом завел реальный счет. Если честно начать зарабатывать удалось не сразу, пока понял всю механику опционов, слил около 3000 рублей, но как оказалось это был драгоценный опыт. Сейчас зарабатываю 5-7 тыс. рублей в день. Машину удалось купить спустя пол года, но как по мне это неплохой результат, да и дело не в машине, у меня изменилась жизнь, с работы естественно уволился, появилось больше свободного времени на себя и семью. Будете смеяться, но работаю прямо на телефоне)) Если ты хочешь изменить свою жизнь как я, то вот что советую сделать прямо сейчас: 1. Зарегистрируйтесь на сайте 2. Потренируйтесь на Демо-счете (это бесплатно). 3. Как только что-то будет получаться на Демо-счете, пополняйте РЕАЛЬНЫЙ СЧЕТ и вперед, к НАСТОЯЩИМ ДЕНЬГАМ! Также советую скачать приложение на телефон, с телефона работать намного удобнее. Скачать тут.
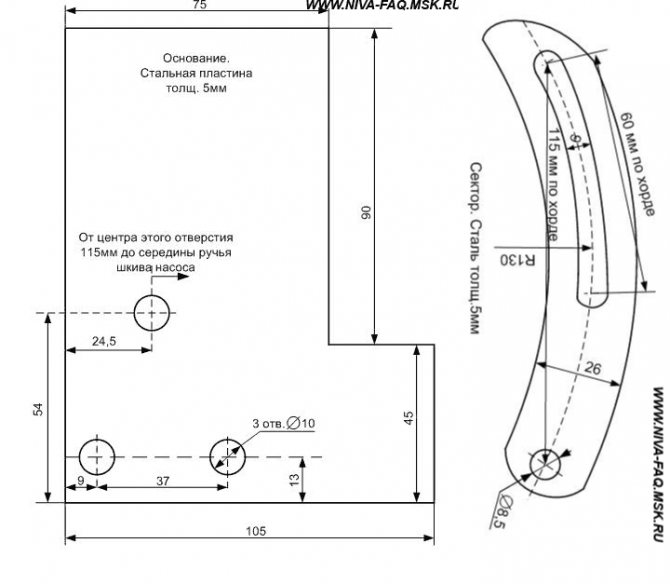
Полный комплект для Нивы 21213
Все что нужно для переделки
В магазине также можно приобрести полный лифт комплект на Ниву, в который входят:
- проставки под задние амортизаторы для Нива 21214, 2131 и др;
- кронштейн, применяемый при переносе точек крепления от тормозных шлангов;
- доработанная тяга для регулировки тормозных сил;
- штанга для задней подвески (поперечная);
- стальные кронштейны для переноса точек крепления от задних амортизаторов (дают подъем на 5 см);
- штанги для задней подвески (регулируемые, верхние);
- стальные проставки под верхние опоры от задних пружин, включая ограничители хода сжатия верхней задней подвески (с высотой 5 см);
- стальные проставки под верхние шаровые опоры, 2 см толщиной;
- стальные проставки под чашки для верхних пружин, количество 8 шт.;
- кронштейны для стабилизатора поперечной устойчивости модели 2131 и др.
Лифт комплект стоит около 10-11 тыс. рублей, не требует замены амортизаторов и приобретения дополнительных деталей, имеет гарантию на 5 лет. Данный набор предполагает, что оптимальной будет резина 30 х 9,5 R15, которую можно поставить на колеса Нивы своими руками.
Комплект на Ниву, выпускаемый в заводских условиях, различается для моделей, произведенных в разные годы. К примеру, есть сборки для машин, сошедших с конвейера после 2009 года, после 2012 года и др. Отдельный лифт комплект есть на модель 21214 с антиблокировочной системой тормозов. В нем присутствуют такие детали, как удлиненные задние амортизаторы, которых нет в базовом.
Повышение проходимости автомобиля
Потребность в повышении проходимости автомобиля возникает у многих водителей. Дальше будут рассмотрены различные способы повышения проходимости автомобилей. Следует заметить, что некоторого улучшения проходимости автомобиля можно достичь достаточно простыми способами.
Повышение проходимости автомобиля – выполнение ряда конструктивных мероприятий направленных на решение следующих задач:
Уменьшение сопротивления качению при движении по дорогам без твёрдого покрытия
Увеличение силы тяги на ведущих колёсах и увеличение сцепления ведущих колёс
Увеличение геометрической проходимости
Обеспечение работоспособности узлов и агрегатов автомобиля при преодолении различных препятствий и водных преград
Как видим инженерные задачи, и конструктивные мероприятия по повышению проходимости автомобиля не предусматривают установку лебёдки и проч. Связано это с тем, что лебёдка не повышает проходимость автомобиля как транспорта, использующего колесо в качестве движителя.
Лебёдка (лопата, топор, домкрат, трапы, буксировка и проч.) относится к системам спасения застрявшего автомобиля. Сюда же можно отнести вызов вертолёта «Чинук» и прочую экзотику.
Стал обладателем Нивы
Для тех, кто мучается с выбором колес, главных пар и прочего и кому лень считать самому есть замечательная штука — калькулятор. https://www.niva-faq….ansmis/calc.htm Попробуем на пальцах потыкать туда циферки и поглядеть как можно не прибегая к сложным расчетам оценить поведение машины. Для начала прикинем какая тяга на колесах получается у штатной нивы. У 5 ступенчатой кпп передаточное чисо первой передачи 3,67 и 4 ступенчатой 3.8 27 колеса ГП 3.9 КПП 5 ст = 981 кг (на пониженной) Установив 31 колеса на штатную трансмисию и 5 ст кпп получаем = 855 кг. Сменив ГП на 4.3 получаем — 943 кг. Маловато, динамика на дороге будет хуже, да и в грязи тяги не будет хватать. Поменяем коробку на 4 ст.. .. получаем уже = 976 кг. Те почти штатную тягу.. При ГП 4.44 на 5 ст КПП имеем — 973 .. Практически так же. но хотелось бы тягу побольше чем у штатной машины. Для сравнения на 29 колесах с 4 ст КПП и 4.3 = 1043 На самом деле практика показывает, что этого маловато для того чтобы уверенно двигатся внатяг. Поэтому сочтем 1050 — 1100 минимально необходимой тягой для сьезда с дороги. Тогда для 31 колес при 4 ст КПП нам надо ГП — никак не меньше 4.7 (1067) Для 5 ст КПП лучшим выбором будет 5.1 (1118) Сооттветственно для 32 колес при 4 ст кпп — в принципе с натягом пойдет 4.7 (1034) Для 5 ст однозначно 5.1 (1083) 4.44 и 5 ст КПП дадут нам 943 кг те значительно меньше чем у стандартной нивы. Установив пониженный ряд 3.15 в раздатку картина несколько меняется. На 32 при 4.3 и 4 ст КПП = 1395 Почти на треть лучше. Минимальная скорость на 1 передаче = 3кмч. На 5.1 и 4 ст КПП = 1655 еще серьезней. Остается решить вопрос тяги на повышенной передаче. Чтобы можно было нормально передвигатся по асфальту. Будем исходить из стандартной машины. (550кг) Итого получаем Для 5 ст КПП 31 — 4.44 32 — 4.7 Из этого напрашивается интересный вывод. Только поменяв ГП не получится получить нужную тягу и на асфальте и на бездорожье. Можно сделать уклон либо в одно либо в другое. Нива на 32 колесах 5 ст КПП и минимальными для внедорожной езды ГП 5.1 обеспечит тягу на повышеной передаче 609 кг вместо 550 а нива на 29 колесах с ГП 4.3 и 4 ст КПП — 586 Что значительно уменьшит максимальную скорость. При этих конфигурациях она будет примерно в районе 80 кмч. Тогда как установка пониженного ряда в раздаточную коробку позволяет подобрать штатную тягу на асфальте и серьезно повысить внедорожные способности.. Используя при этом доступные ГП вроде 4.3 или 4.44 для установки колес до 32 дюймов.
Методы повышения проходимости автомобилей
Уменьшение сопротивления качению при движении по дорогам без твёрдого покрытия
Уменьшение сопротивления качению при движении по дорогам без твёрдого покрытия решается несколькими способами.
На этапе конструкторской проработки выбирается размер колеи автомобиля. Для уменьшения сопротивления качению по мягким грунтам и снежной целине ширина колеи всех мостов автомобиля должна быть одинаковой.
При движении по дорогам без твёрдого покрытия большое значение имеет соответствие колеи автомобиля той ширине дорожной колеи, которая образуется на грунтовой дороге при движении остального транспорта.
Нередко конструкторы согласуют ширину колеи легких вездеходов и джипов с шириной колеи основных грузовых автомобилей. Кстати, основной джип Второй Мировой войны имел узкую колею, которая не соответствовала ширине колеи остального транспорта того времени. Размеры джипа были заданы исходя из возможностей транспортной авиации и флота того времен. Это делало джип удобным для переброски на большие расстояния, однако весьма негативно сказывалось на его проходимости по колеям грунтовых дорог.
Узкая колея этого джипа никак не сказывалась на проходимости по каменистым дорогам, по полям и по разбитым дорогам с усовершенствованным покрытием.
Водитель обычно не имеет возможности повлиять на колею своего автомобиля. Вообще регулировать колею в процессе эксплуатации можно только на некоторых моделях колёсных тракторов, приноравливая её к ширине посевов различных культур.
Тем не менее, уменьшить сопротивление качению можно другим способом. Сопротивление качению уменьшается с увеличением диаметра колеса. Поэтому, установив на автомобиль колёса большого диаметра, водитель несколько снижает сопротивление качению.








